受太陽能熱水器水箱結構和形狀的限制,水位試驗不得改變或破壞水箱及保溫部件的尺寸。水位檢測元件只能從預留的約20mm的Ф圓孔的上部或底部伸入箱內。目前大部分太陽能熱水器傳感器都是使用電極來檢測水位(簡稱電極式),原理是利用水的導電性。電極片按一定尺寸要求分布在絕緣棒上,形成測量棒,從水箱頂部插入。
其中A、B、C、D,包括公共端,為電極板。A、B、C、D電極浸入水中時,與公共端產生A電流。實際檢測是根據電極片上是否有電流,來判斷是否浸入水中。電極控制和檢測電路比較簡單,成本較低,因此得到了廣泛的應用,是目前的主流技術。然而,當電極結垢時(鈉、鎂離子的附著),導致測量誤差的問題并沒有從根本上解決。

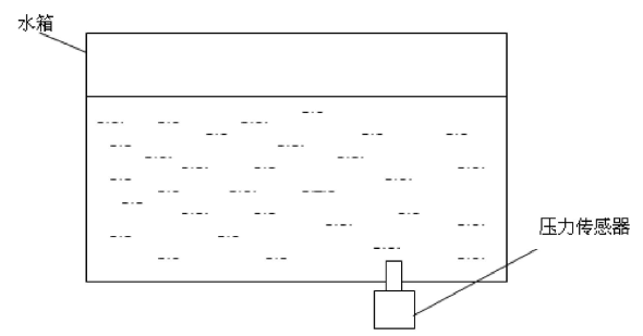
由于電極結垢后,或結垢厚度達到一定程度,無法正常測量水位。在水質較差的地方情況更為嚴重。為了保證測量的準確性,必須定期更換測量桿。少數太陽能熱水器使用水壓傳感器來測量水位。安裝在水箱底部的壓力傳感器通過測量水壓來確定水位(水量),簡稱壓力式。

壓力式在一定程度上避免了水垢測量問題,但傳感器無法承受60C以上的溫度(實際水溫往往超過60C)。雖然可以采取一些絕緣措施,但無法防止溫度過高對傳感器造成損壞。此外,水垢也會影響測量孔堵塞后的測量結果。也有使用干簧管水位檢測的,簡稱干簧管式。原理是在一根測桿內按照一定尺寸(如電極式)分布埋置干簧管,每個干簧管段設置一個帶有永磁體的環(huán)形浮子,干簧管在每個段的頂部限位和浮子在分段內上下移動,只有當水的浮力升高時,浮子才將塊永磁體吸到干簧管的頂部。

測桿從水箱頂部插入??梢钥闯?,當所有浮子都位于斷面頂部時,所有干簧管都在動作,所以水位為最高。相反,當所有的浮動都位于該部分的底部時,所有干簧管都不工作,則水位最低。由于機械運動(浮子的上下運動),干簧式的可靠性較低。

